霞ヶ丘3丁目 A号地
霞ヶ丘小学校が通学範囲内、学校まで徒歩11分。3口コンロが付いているので、たくさん作る場合でも同時に料理を進められます。設備が充実してうれしい、築浅物件です。リビングダイニングが20帖以上の広さで、光も広く届きます。
-
ローンシミュレーションこの物件を購入した場合の、月々の支払い価格の一例です。借り入れを保証するものではございません。
- 返済期間
-
- 金利
-
- ボーナス時の増額(1回分)
-
- 借入金額:
-
- 頭金:
-

- 毎月の返済額:
(※元利均等方式 金利5.00%まで ※返済年数5~50年まで入力できます)
(※ボーナスは年2回で計算しています。1000万円まで入力できます)
(※物件購入時、その他諸費用が発生する場合がございます)
情報の見方担当者のコメント 山口.

- こちらは中古の戸建てです。リビングダイニングが20帖以上の広さで、光も広く届きます。今回紹介するのは、建物面積が106.48平米。駅までは徒歩14分でアクセス可能です。是非現地でお確かめください。
ポイント・特徴
物件概要
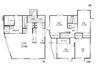
【中古一戸建】 物件番号:94492101 情報更新日:2026年02月06日 次回更新予定日:2026年02月20日所在地 兵庫県神戸市垂水区霞ケ丘3丁目1-12 交通 間取り/詳細 4LDK/
洋室 6.0帖 1室/洋室 5.2帖 1室/洋室 5.6帖 1室/洋室 6.3帖 1室/LDK 20.0帖 1室建物面積(坪数) 106.48㎡(32.21坪) 価格 4,080万円 駐車場/月額料金 有/0円 土地の敷金/保証金 -/- 借地料/借地期間 -/- 土地権利 所有権 土地面積(坪数) 128.09㎡(38.74坪) 傾斜地部分面積 - 路地状敷地 - 私道負担面積/セットバック -/無 高圧線下面積 - 地目/地勢 宅地/- 接道状況 -(北 5.0m) 建ぺい率/容積率 -/- 用途地域 第一種低層住居専用 都市計画 - 種別/構造 中古一戸建/木造 階建 2階建 築年月(築年数) 2024年 5月 (築1年) 総区画数/販売区画数 -/- 向き - 現況 完成済み その他の法令上の制限 - 取引態様/引渡時期 一般媒介/相談 建築確認番号 - 物件番号 94492101 取引条件の有効期限 2026年02月20日 設備条件 - 室内洗濯機置場
- 都市ガス
- 公営水道
- 公共下水
- ガスコンロ
- コンロ2口以上
- コンロ3口
備考 広々としたリビングに充実設備のキッチンを備えた4LDK。3口コンロが付いているので、3つの料理を同時に進められて時短につながります。中古戸建てながら、室内はとてもきれいです。駅まで徒歩14分の場所に立地しています。 取扱会社 - プログレス不動産販売(株)
- 兵庫県宝塚市中山寺1丁目15-4 中山パインビル2F
- TEL:0797-87-3338
- 兵庫県知事 (6) 第10505号
- (一社)兵庫県宅地建物取引業協会
※地図上に表示される物件の位置は付近住所に所在することを表すものであり、実際の物件所在地とは異なる場合がございます。
物件お問い合わせ
















